г. Владивосток, ул. Приморская, 6, стр. 3

г. Находка,ул. Шоссейная д.148

г. Уссурийск, ул. Кузнечная 14Р

п. Угловое, ул. Гагарина, 90

п. Де-Фриз, ул. Морская, 1Б

ПЕРЕЗВОНИТЬ ВАМ?

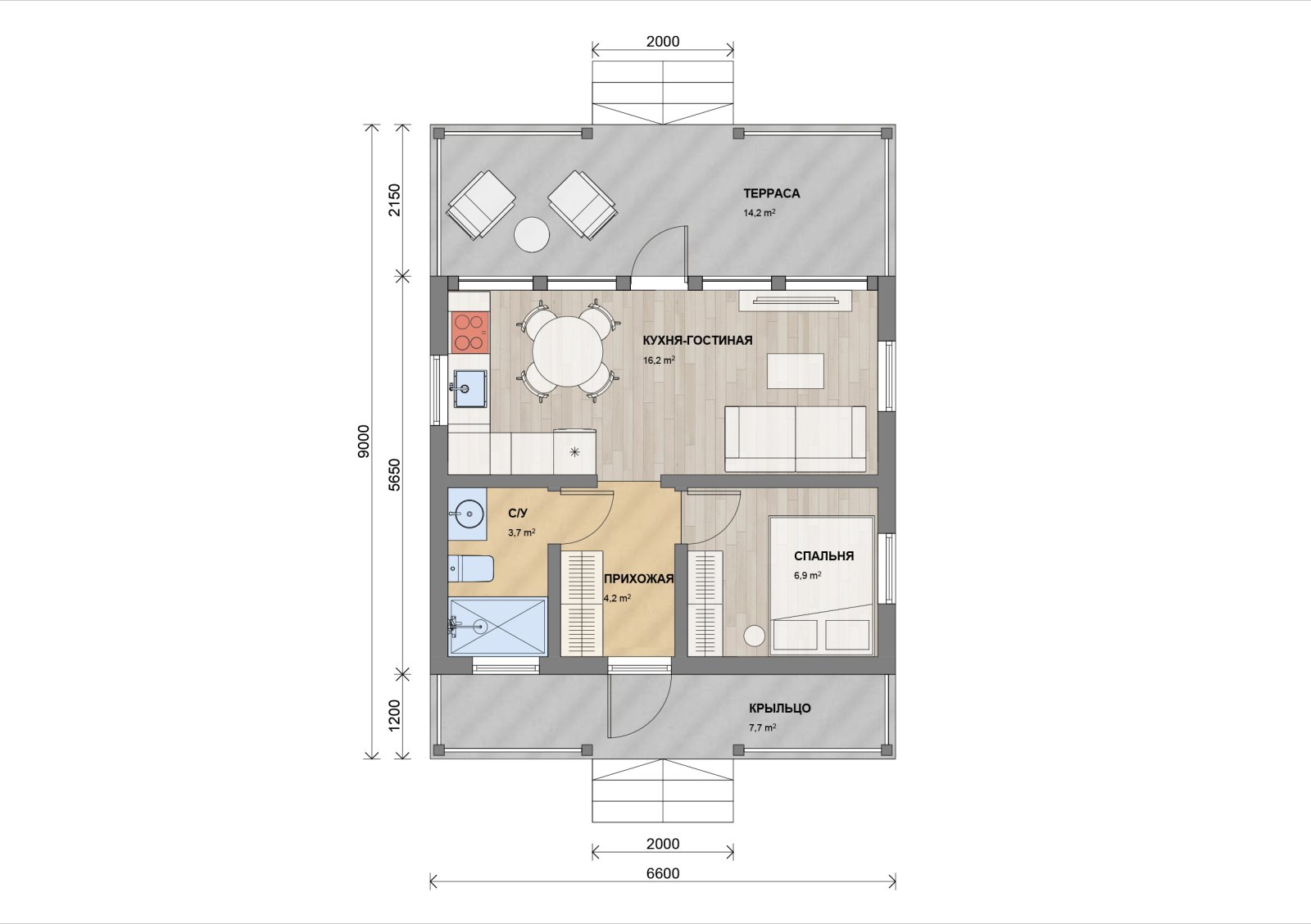
Барнхаус Комфорт 30

Базовая комплектация дома включает в себя

Тёплый контур

  • Стены выполнены из сэндвич-панелей толщиной 150 мм для наружных стен и 100 мм – для внутренних перегородок.
  • Кровля из сэндвич-панелей толщиной 200 мм.
  • Полы выполнены из многослойной деревянной конструкции, утепленной ПСБС толщиной 200 мм.

 

Фундамент

  • Винтовые сваи с обвязкой брусом (в стоимость входит фундамент для участка без уклона).

 

Оконные и дверные конструкции

  • Окна ПВХ рамные, профиль 70 мм, (производство РФ), двухкамерный стеклопакет, двусторонняя ламинация.

 

Наружная отделка

  • Зашивка кровли профлистом С25.
  • Обрамление окон и дверей металлическими откосами.
  • Отделка террасы и лестницы террасной доской.
  • Устройство ограждений террасы.
  • Терраса окрашивается на 2 слоя.

 

Внутренняя отделка

  • Стены - отсутствует (сэндвич-панель),
  • Пол – линолеум,
  • Потолок – отсутствует (сэндвич-панель)
  • Межкомнатные двери с эмалевым покрытием.

 

Вентиляция

  • Анемостаты (естественная вентиляция).

 

Комплектация дома из панелей «под ключ»

Тёплый контур 

  • Стены выполнены из сэндвич-панелей толщиной 150 мм для наружных стен и 100 мм – для внутренних перегородок. 
  • Кровля выполнена из сэндвич-панелей толщиной 200 мм. 
  • Полы выполнены из многослойной деревянной конструкции, утепленной ПСБС толщиной 200 мм.

Фундамент

  • Винтовые сваи с обвязкой брусом (в стоимость входит фундамент для участка без уклона).

Оконные и дверные конструкции

  • Окна ПВХ рамные, профиль 70 мм, (производство РФ), двухкамерный стеклопакет, двусторонняя ламинация.

Наружная отделка

  • Зашивка кровли профлистом С25. 
  • Обрамление окон деревянным планкеном и дверей металлическими откосами. 
  • Отделка террасы и лестницы террасной доской. 
  • Устройство ограждений террасы. 
  • Терраса и планкен окрашиваются на 2 слоя.

Внутренняя отделка

  • Стены отделываются имитацией бруса во всех помещениях с окрашиванием на 2 слоя.

Напольные покрытия

  • В сухих помещениях – укладка ламината,
  • В мокрых помещениях (санузел и тамбур) укладка керамогранита (с укладкой на ЦСП).

Потолок отделывается натяжным потолком.

Межкомнатные двери с эмалевым покрытием.

Электропроводка

  • Скрытая в гофре со встроенными розетками и выключателями. 
  • Освещение – встроенные точечные светильники, люстры потолочные и подвесные.

Отопление электрические обогреватели.

Сантехника  

  • Скрытая прокладка труб. 
  • Установка водонагревателя 80 л, унитаза напольного, установка раковины с тумбой со смесителем в санузле. 
  • Установка душевой кабины 900х900 мм, подводка труб к кухонной зоне.

Вентиляция

  • Принудительная вентиляция – в санузле и на кухне.
  • Рекуператоры Royal Clima Fiato.


Дом в каркасно-щитовом исполнении без отделки

Тёплый контур

  • Стены и кровля выполнены из многослойного деревянного каркаса с утеплителем минеральная вата толщиной 150 мм. 
  • Полы выполнены из многослойной деревянной конструкции, утепленной минеральной ватой толщиной 200 мм.

Фундамент 

  • Винтовые сваи с обвязкой брусом (в стоимость входит фундамент для участка без уклона).

Оконные и дверные конструкции

  • окна ПВХ рамные, профиль 70 мм, (производство РФ), двухкамерный стеклопакет, двусторонняя ламинация.

Наружная отделка

  • Зашивка кровли и стен профлистом С25.
  • Обрамление окон и дверей металлическими откосами. 
  • Отделка террасы и лестницы террасной доской. 
  • Устройство ограждений террасы. 
  • Терраса окрашивается на 2 слоя.

Внутренняя отделка 

  • Стены без отделки (пароизоляция + обрешетка).
  • Напольное покрытие: отсутствует.
  • Потолок без отделки (пароизоляция + обрешетка).

Вентиляция 

  • Анемостат (естественная вентиляция).


Дом в каркасно-щитовом исполнении с комплектацией «под ключ»

Тёплый контур

  • Стены, перегородки и кровля выполнены из многослойного деревянного каркаса с утеплителем минеральная вата толщиной 150 мм. 
  • Полы выполнены из многослойной деревянной конструкции, утепленной минеральной ватой толщиной 200 мм.

Фундамент

  • Винтовые сваи с обвязкой брусом (в стоимость входит фундамент для участка без уклона).

Оконные и дверные конструкции

  • Окна ПВХ рамные, профиль 70 мм, (производство РФ), двухкамерный стеклопакет, двусторонняя ламинация.

Наружная отделка

  • Зашивка кровли профлистом С25. 
  • Обрамление окон деревянным планкеном и дверей металлическими откосами. 
  • Отделка террасы и лестницы террасной доской. 
  • Устройство ограждений террасы. 
  • Терраса и планкен окрашиваются на 2 слоя.

Внутренняя отделка

  • Стены отделываются имитацией бруса во всех помещениях с окрашиванием на 2 слоя.

Напольные покрытия

  • В сухих помещениях – укладка ламината
  • В мокрых помещениях (санузел и тамбур) укладка керамогранита (с укладкой на ЦСП).

Потолок отделывается натяжным потолком.

Межкомнатные двери с эмалевым покрытием.

Электропроводка

  • Скрытая в гофре со встроенными розетками и выключателями. 
  • Освещение – встроенные точечные светильники, люстры потолочные и подвесные.
  • Отопление  электрические обогреватели.

Сантехника

  • Скрытая прокладка труб. 
  • Установка водонагревателя 80 л, унитаза напольного, установка раковины с тумбой со смесителем в санузле. 
  • Установка душевой кабины 900х900 мм, подводка труб к кухонной зоне.

Вентиляция

  • Принудительная вентиляция – в санузле и на кухне.
  • Рекуператоры Royal Clima Fiato.


Дополнительные услуги

  • Замена главного фасад на панорамную стену (безрамное остекление),
  • Устройство фундаментной плиты,
  • Устройство септика и скважины,
  • Устройство тёплого пола (пленочного, кабельного, водяного),
  • Устройство системы приточно-вытяжной вентиляции (канальной),
  • Установка кондиционеров.


ИТОГОВАЯ ЦЕНА:

?
Загрузка...

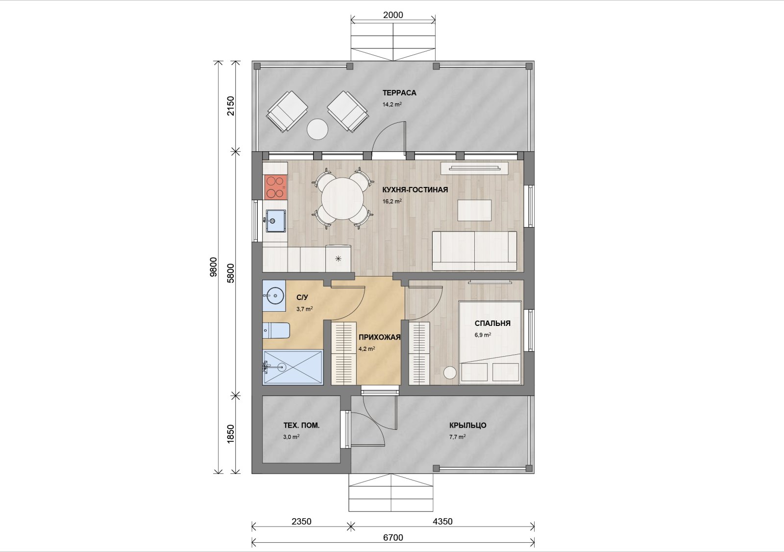
Барнхаус Комфорт 30

ИТОГОВАЯ ЦЕНА:

?

Базовая комплектация дома включает в себя

Тёплый контур

  • Стены выполнены из сэндвич-панелей толщиной 150 мм для наружных стен и 100 мм – для внутренних перегородок.
  • Кровля из сэндвич-панелей толщиной 200 мм.
  • Полы выполнены из многослойной деревянной конструкции, утепленной ПСБС толщиной 200 мм.

 

Фундамент

  • Винтовые сваи с обвязкой брусом (в стоимость входит фундамент для участка без уклона).

 

Оконные и дверные конструкции

  • Окна ПВХ рамные, профиль 70 мм, (производство РФ), двухкамерный стеклопакет, двусторонняя ламинация.

 

Наружная отделка

  • Зашивка кровли профлистом С25.
  • Обрамление окон и дверей металлическими откосами.
  • Отделка террасы и лестницы террасной доской.
  • Устройство ограждений террасы.
  • Терраса окрашивается на 2 слоя.

 

Внутренняя отделка

  • Стены - отсутствует (сэндвич-панель),
  • Пол – линолеум,
  • Потолок – отсутствует (сэндвич-панель)
  • Межкомнатные двери с эмалевым покрытием.

 

Вентиляция

  • Анемостаты (естественная вентиляция).

 

Комплектация дома из панелей «под ключ»

Тёплый контур 

  • Стены выполнены из сэндвич-панелей толщиной 150 мм для наружных стен и 100 мм – для внутренних перегородок. 
  • Кровля выполнена из сэндвич-панелей толщиной 200 мм. 
  • Полы выполнены из многослойной деревянной конструкции, утепленной ПСБС толщиной 200 мм.

Фундамент

  • Винтовые сваи с обвязкой брусом (в стоимость входит фундамент для участка без уклона).

Оконные и дверные конструкции

  • Окна ПВХ рамные, профиль 70 мм, (производство РФ), двухкамерный стеклопакет, двусторонняя ламинация.

Наружная отделка

  • Зашивка кровли профлистом С25. 
  • Обрамление окон деревянным планкеном и дверей металлическими откосами. 
  • Отделка террасы и лестницы террасной доской. 
  • Устройство ограждений террасы. 
  • Терраса и планкен окрашиваются на 2 слоя.

Внутренняя отделка

  • Стены отделываются имитацией бруса во всех помещениях с окрашиванием на 2 слоя.

Напольные покрытия

  • В сухих помещениях – укладка ламината,
  • В мокрых помещениях (санузел и тамбур) укладка керамогранита (с укладкой на ЦСП).

Потолок отделывается натяжным потолком.

Межкомнатные двери с эмалевым покрытием.

Электропроводка

  • Скрытая в гофре со встроенными розетками и выключателями. 
  • Освещение – встроенные точечные светильники, люстры потолочные и подвесные.

Отопление электрические обогреватели.

Сантехника  

  • Скрытая прокладка труб. 
  • Установка водонагревателя 80 л, унитаза напольного, установка раковины с тумбой со смесителем в санузле. 
  • Установка душевой кабины 900х900 мм, подводка труб к кухонной зоне.

Вентиляция

  • Принудительная вентиляция – в санузле и на кухне.
  • Рекуператоры Royal Clima Fiato.


Дом в каркасно-щитовом исполнении без отделки

Тёплый контур

  • Стены и кровля выполнены из многослойного деревянного каркаса с утеплителем минеральная вата толщиной 150 мм. 
  • Полы выполнены из многослойной деревянной конструкции, утепленной минеральной ватой толщиной 200 мм.

Фундамент 

  • Винтовые сваи с обвязкой брусом (в стоимость входит фундамент для участка без уклона).

Оконные и дверные конструкции

  • окна ПВХ рамные, профиль 70 мм, (производство РФ), двухкамерный стеклопакет, двусторонняя ламинация.

Наружная отделка

  • Зашивка кровли и стен профлистом С25.
  • Обрамление окон и дверей металлическими откосами. 
  • Отделка террасы и лестницы террасной доской. 
  • Устройство ограждений террасы. 
  • Терраса окрашивается на 2 слоя.

Внутренняя отделка 

  • Стены без отделки (пароизоляция + обрешетка).
  • Напольное покрытие: отсутствует.
  • Потолок без отделки (пароизоляция + обрешетка).

Вентиляция 

  • Анемостат (естественная вентиляция).


Дом в каркасно-щитовом исполнении с комплектацией «под ключ»

Тёплый контур

  • Стены, перегородки и кровля выполнены из многослойного деревянного каркаса с утеплителем минеральная вата толщиной 150 мм. 
  • Полы выполнены из многослойной деревянной конструкции, утепленной минеральной ватой толщиной 200 мм.

Фундамент

  • Винтовые сваи с обвязкой брусом (в стоимость входит фундамент для участка без уклона).

Оконные и дверные конструкции

  • Окна ПВХ рамные, профиль 70 мм, (производство РФ), двухкамерный стеклопакет, двусторонняя ламинация.

Наружная отделка

  • Зашивка кровли профлистом С25. 
  • Обрамление окон деревянным планкеном и дверей металлическими откосами. 
  • Отделка террасы и лестницы террасной доской. 
  • Устройство ограждений террасы. 
  • Терраса и планкен окрашиваются на 2 слоя.

Внутренняя отделка

  • Стены отделываются имитацией бруса во всех помещениях с окрашиванием на 2 слоя.

Напольные покрытия

  • В сухих помещениях – укладка ламината
  • В мокрых помещениях (санузел и тамбур) укладка керамогранита (с укладкой на ЦСП).

Потолок отделывается натяжным потолком.

Межкомнатные двери с эмалевым покрытием.

Электропроводка

  • Скрытая в гофре со встроенными розетками и выключателями. 
  • Освещение – встроенные точечные светильники, люстры потолочные и подвесные.
  • Отопление  электрические обогреватели.

Сантехника

  • Скрытая прокладка труб. 
  • Установка водонагревателя 80 л, унитаза напольного, установка раковины с тумбой со смесителем в санузле. 
  • Установка душевой кабины 900х900 мм, подводка труб к кухонной зоне.

Вентиляция

  • Принудительная вентиляция – в санузле и на кухне.
  • Рекуператоры Royal Clima Fiato.


Дополнительные услуги

  • Замена главного фасад на панорамную стену (безрамное остекление),
  • Устройство фундаментной плиты,
  • Устройство септика и скважины,
  • Устройство тёплого пола (пленочного, кабельного, водяного),
  • Устройство системы приточно-вытяжной вентиляции (канальной),
  • Установка кондиционеров.


Задать вопрос по проекту

Нажимая на кнопку «Отправить заявку», вы соглашаетесь с Политикой конфиденциальности

Фотографии проекта

Загрузка...

Ждем Вас на наших выставочных площадках:

ул. Приморская, 6, ст 3 (район Змеинка)


ЧАСЫ РАБОТЫ:
Понедельник - пятница 

с 09:00 до 18:00


Суббота -

с 10:00 до 16:00


Воскресенье - выходной

Владивосток

ул. Гагарина, 90А
(за церковью, вдоль трассы).


ЧАСЫ РАБОТЫ:
Понедельник - пятница 

с 09:00 до 18:00


Суббота - воскресенье 

с 10:00 до 16:00

Угловое

ул. Морская, 1Б

ЧАСЫ РАБОТЫ:
Понедельник - среда, пятница - суббота

с 09:00 до 18:00


Четверг, воскресенье  - выходной

 

Де-Фриз

ул. Кузнечная 14.

ЧАСЫ РАБОТЫ:
Понедельник - пятница 

с 09:00 до 18:00


Суббота - воскресенье 

с 10:00 до 16:00  

Уссурийск

ул. Шоссейная д. 148

ЧАСЫ РАБОТЫ:
Понедельник - пятница 

с 09:00 до 18:00


Суббота - воскресенье 

с 10:00 до 16:00  

Находка

© ДВСК «КОВЧЕГ», 2008-2025

Запрещено копирование, распространение или перепечатывание любых материалов сайта без предварительного согласия администрации ресурса.

Данный ресурс не является публичной офертой и  носит исключительно информационный характер. Для получения подробной информации обращайтесь в офисы продаж.

Политика конфиденциальности

СДЕЛАЛ AIGER

Мы используем cookie. Это позволяет нам анализировать взаимодействие посетителей с сайтом и делать его лучше. Продолжая пользоваться сайтом, вы соглашаетесь с Политикой использования cookies и Политикой конфиденциальности.
Хорошо